A feladatunk ezúttal egy kortárs, lapostetős otthon megtervezése volt egy négyfős család számára a XI.kerületben.

Telek és adottságok
Adott volt egy nagyjából szabályos négyzet alakú saroktelek, 8,5%-os lejtéssel. Ide készült el a szabadonálló családi ház terve.

Az elhelyezés során elsősorban a megrendelőnk igényeit, a sarokteleki és lejtési adottságokat vettük figyelembe.
Tömegalkotás, formák
Az épület letisztult, sokszögletes formákból áll.

A környező beépítésekre jellemző, ahhoz illeszkedő lapostetős modern épületet terveztünk az építtető család igényeivel szinkronban.

Az épület homlokzata vakolt és táblás burkolatokkal készül.

Homlokzaton kétféle vakolt felület jelenik meg: fehér és szürke ún. modellező struktúr vakolat, illetve barna Trespa és szürke Prefabond táblás burkolat.

A bádogos szerkezetek és állókorcos fémlemez tetők Prefa P.10 alu termékkel készülnek.
Elrendezés
A megérkezés a telek É-i oldalán történik, gyalogosan és gépjárművel. A parkolás épületen és telken belül is biztosított (az épület előtti térkővel burkolt teületen).

A telken több meglévő fa is volt, így most is, mint a legtöbb tervezési folyamatkor ezeket is figyelembe vettük. Fontos szempont, hogy a meglévő növényzetet csak indokolt esetben alakítsuk/bántsuk.
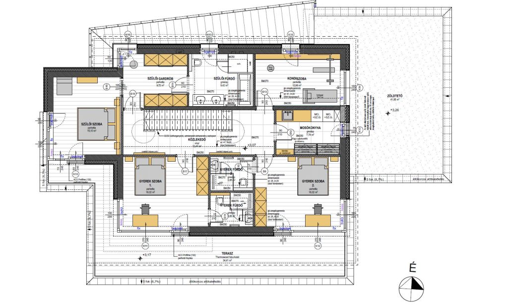
Alaprajzok
Földszint
Az épületbe lépve egy előtérbe érünk, innen nyílik a megérkezéshez, induláshoz kapcsolódó gardrób, vizes blokk és tároló/gépészeti helyiség.

Az előszobából a megérkezést követően egyenesen továbbhaladva jutunk a nappali-étkező-konyha terébe. A kamra a konyhából nyílik.

A nappali túlsó végében találjuk a dolgozó/vendég blokkot saját fürdővel és gardróbbal. A tágas nappalihoz tartozik egy részlegesen fedett terasz is.
Emelet
Az emeletre egy 10cm vastag gipszbeton lépcső vezet fel, amit gyakran alkalmazunk a tervezéseinkor, hiszen egy korszerű megoldás.

A lépcső felérve a közlekedőbe jutunk. Innen elérhető az összes funkció. Szülői blokk saját gardróbbal és fürdővel, mosókonyha, kondiszoba és két gyerekszoba külön-külön fürdőkkel a kert felé tájolva.
Zöldtető
A lapostetőre növények telepítését tervezzük, így ide egy extenzív zöldtető rétegrend fog kerülni.

Ha építkezésen gondolkodtok, és belevágnátok, gyertek el konzultálni hozzánk, ahol részletesen elmondhatjuk és megmutathatjuk Nektek, mire érdemes figyelnetek, milyen szerkezetekben, anyagokban, gépészetben érdemes gondolkodnotok, és milyen terveket ír elő minimum a jogszabály, illetve milyen tervekre lesz szükség ahhoz, hogy a kivitelező tényleg álmaitok otthonát építhesse meg!