368 m2-es, 4 szobás családi házat álmodtunk meg a festői Balatonhenyére.

Az épületet a tradicionális vidéki stílusban terveztük meg, ezzel őrizve a falu és a környező települések képét.

Első pillantásra olyan, mintha három különálló, klasszikus parasztház sorakozna egymás mellett, azonban az alaprajzot megtekintve kiderül, hogy két különálló épületről van szó.
Földszinti alaprajz

A főépület jól tagolt, a jobb oldali szárnyban találhatóak a privát helyiségek, a bal oldalon pedig a nappali, a konyha és az étkező óriási egybefüggő tere tárul elénk.

Az épület hátsó homlokzatán kortárs megoldásokkal találkozunk: a nappaliból hatalmas ablakok nyílnak a hátsó kertre, mely vizuális kapcsolatot teremt a környezettel és a belső tereket egész nap természetes fény árasztja el.

Az étkezőből nyílik az épület tömegébe integrált fedett terasz, mely a hatalmas nyílászáróknak köszönhetően szinte egy térként funkcionál az étkezővel.
Emeleti alaprajz

A főépület emeletén egy hangulatos olvasószobát alakítottunk ki, a közlekedő galériás kialakítása miatt pedig tökéletesen belátjuk a nappali összefüggő, impozáns terét.

Az olvasószoba hátsó kertre néző fala teljesen üvegezett, azonban az alatta elhelyezkedő szülői szoba az utcafronti homlokzattal megegyező stílusú ablakokat kapott.

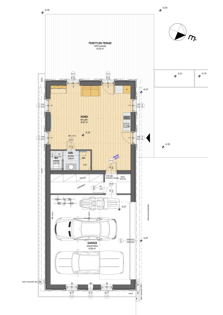
Melléképület alaprajza

A főépülettől elválasztott kisebb épület egyik felében egy kétállásos garázs, a másikban pedig egy szaunával kiegészített konditerem kapott helyet.

Az épület homlokzata szintén Balatonhenye utcaképéhez illeszkedik: a szürke vakolat, a fehér ablakkeretezés és az árnyékolóként szolgáló zsalugáterek stílusa a főépülettel megegyező külsőt kapott.

A kis épülethez szintén tartozik egy terasz, a két épületet pedig egy térkövezett járda köti össze.

Madártávlatból nézve az épületet, jól láthatóak a hagyományos nyeregtetők és a főépület H-alakú épület, ahogyan a nappali összeköti a privát tereket az étkező és a konyha kettősével.
szerző: Tatai Emese
Ha építkezésen gondolkodtok, és belevágnátok, gyertek el konzultálni hozzánk, ahol részletesen elmondhatjuk és megmutathatjuk Nektek, mire érdemes figyelnetek, milyen szerkezetekben, anyagokban, gépészetben érdemes gondolkodnotok, és milyen terveket ír elő minimum a jogszabály, illetve milyen tervekre lesz szükség ahhoz, hogy a kivitelező tényleg álmaitok otthonát építhesse meg!
Hasonló cikkeink: